Notice: Function _load_textdomain_just_in_time was called incorrectly. Translation loading for the acf domain was triggered too early. This is usually an indicator for some code in the plugin or theme running too early. Translations should be loaded at the init action or later. Please see Debugging in WordPress for more information. (This message was added in version 6.7.0.) in /var/www/norgroup-wp.worksy.ru/htdocs/wp-includes/functions.php on line 6131
Модуль для сбора ТКО, STEALTH — Norgroup — Освещение и благоустройство городской среды

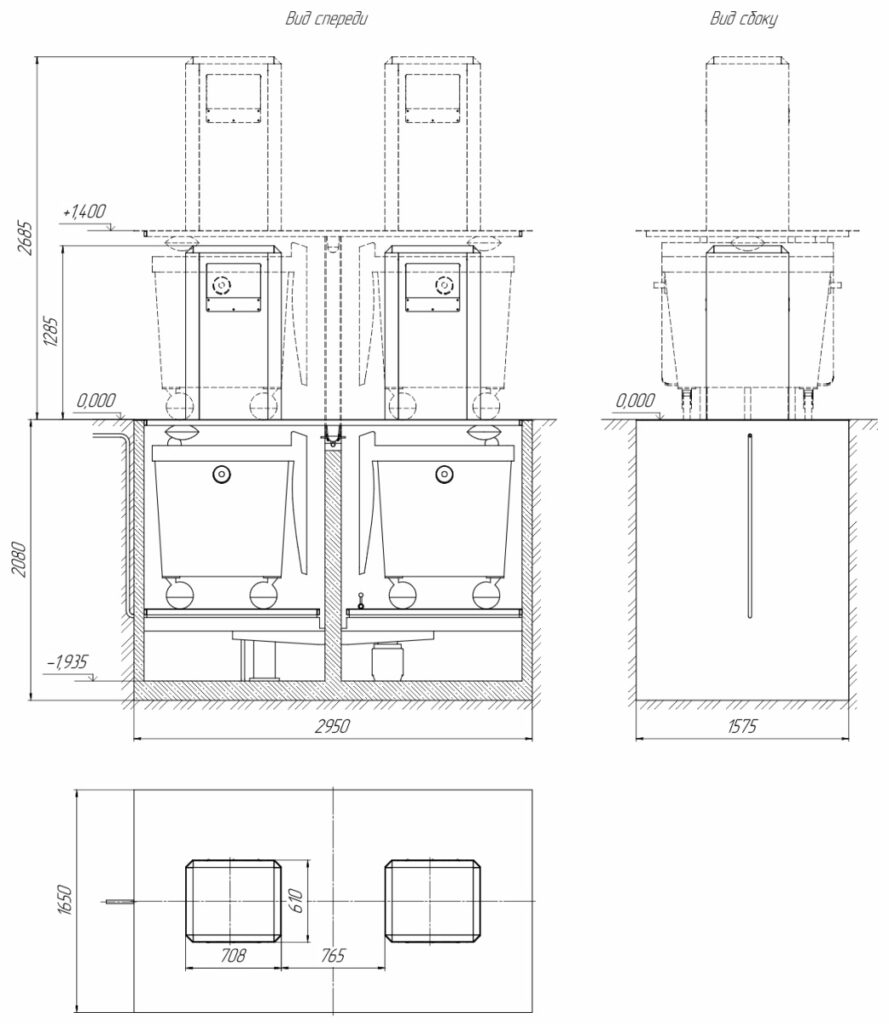
Модуль для сбора ТКО, STEALTH

  • Сделано в России
  • В реестре Минпромторг России

В основе работы системы сбора и подземного хранения ТКО лежит работа гидравлической системы, которая позволяет хранить ТКО в герметичном закрытом подземном пространстве (кессоне) в стандартных мусорных контейнерах а в случае необходимости поднять контейнеры над поверхностью для их опустошения. Урны над поверхностью служат мусороприемниками, которые направляют ТКО в подземные контейнеры.

При наполнении подземных контейнеров оператор управляющей компании при помощи пульта дает команду гидравлической системе на подъем площадки с подземными мусорными контейнерами. После опустошения подземные контейнеры по команде оператора опускаются
в подземное хранилище.

Для удаления воды из подземного хранилища применяется система автоматического дренажа.

Другие товары